Insight Horizon
technology /

What type of bathroom includes a toilet sink and tub?

What type of bathroom includes a toilet sink and tub?

Bathrooms are generally categorized as “master bathroom”, containing a shower and a bathtub that is adjoining to the largest bedroom; a “full bathroom” (or “full bath”), containing four plumbing fixtures: a toilet and sink, and either a bathtub with a shower, or a bathtub and a separate shower stall; “half bath” (or ” …

What is a standard size tub?

Standard tubs usually have external measurements around 60 inches long, 30 inches wide and 14 to 16 inches high. When shopping for a soaking tub, find a tub that measures between 60 inches long and 72 inches long. Persons over six feet tall may want to consider an oversized bathtub for the most comfort.

What is the standard size of toilet and bath?

An average sized bathroom is anywhere between 36-40 square feet for an apartment or small home. This size is the general size as it encompasses both ¾ baths as well as full baths, giving you just about enough room for a shower, a bath, a sink and a toilet.

What is a standard size bathtub shower combo?

60 inches by 36 inches by 72 inches
Shower and Bathtub Combinations The standard bathtub dimensions are 32 inches wide and 60 inches long, so most bathroom and shower combos are 60 inches by 36 inches by 72 inches or 60 inches by 30 inches by 72 inches.

How deep should my tub be?

So how deep should a soaking tub be? Keeping in mind the water depth measurement, aim for a minimum of 14 to 15 inches of water depth. This level should be deep enough to cover most of a person’s frame. Some tubs, like Japanese soaking tubs, offer water depths of more than 22 inches deep.

Is there a free standing tub in the bathroom?

The main bathroom area has a toilet and a shower and a bathtub. This compact bathroom design provides some style in tight space. The centerpiece of this layout is the free-standing tub, a spectacular option that can spruce up any bathroom. The tub is sectioned off from the rest of the bathroom, which includes a sink and toilet.

What are the different sizes of bathtubs?

Bathtub Sizes & Dimensions: Guide to standard tub sizes 1 Alcove Tubs. One of the most common tubs, an alcove tub, sits at the end of a small bathroom width wise, flanked by three walls. 2 Drop In Bathtub. 3 Undermount tub. 4 Whirlpool Tubs. 5 Stand Alone Bathtub. 6 Corner Bathtubs. …

What kind of bathroom has toilet and sink?

Half-baths, also known as utility bathrooms or powder rooms, are minimum bathrooms that have two of the four main bathroom fixtures—typically a toilet and sink. Used primarily for short term visitors, half-baths are often found near the main entrance of a space and offer guests an easily accessed bathroom.

Where are the sinks and toilet in a shared bathroom?

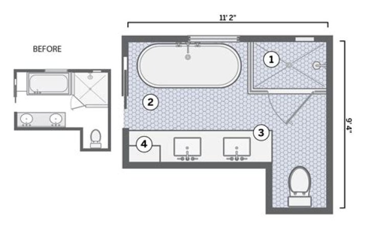
A stand-alone shower is to the right. The bathtub and toilet are located along the left side of the plan, separated from the sinks and shower, providing some level of privacy. With two entryways, this bathroom design provides numerous options for those looking for a shared bathroom plan.

What are the dimensions of a toilet and sink?

Toilet Area Dimensions: Minimum: 30 inches wide (15 inches from centerline on each side) by 30 inches deep + 21 inches of front clearance; Recommended: 36 inches wide by 30 inches deep + 30 inches of front clearance; Sink Area Dimensions: Minimum: 30 inches wide (15 inches from centerline to wall) by 21 inches deep + 21 inches of front clearance

Half-baths, also known as utility bathrooms or powder rooms, are minimum bathrooms that have two of the four main bathroom fixtures—typically a toilet and sink. Used primarily for short term visitors, half-baths are often found near the main entrance of a space and offer guests an easily accessed bathroom.

What are the dimensions of a standard bathtub?

Bathtub Dimensions 1 Standard Bathtub Width: 31 inches 2 Standard Bathtub Length: 60 inches 3 Standard Bathtub Height: 20 inches

What are the dimensions of a half bath bathroom?

Minimum: 60 inches long by 31 inches wide with 21 inches of front clearance Recommended: 60 inches long by 31 inches wide with 30 inches of front clearance A half bath is defined as a bathroom that has a sink and toilet but no bathtub or shower. These are also called a powder room or guest bathroom.