Insight Horizon
arts /

What should I look for when adding new plumbing to my home?

What should I look for when adding new plumbing to my home?

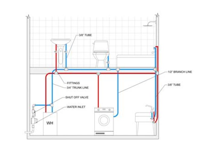
When adding new plumbing fixtures or appliances to your home, the first thing you’ll need to consider is whether your water pressure is good enough to support your additions. Check local building codes to find out the “fixture units” (a rating that represents the cubic feet of water used per minute) of an appliance or new fixture.

How can I find out the size of my plumbing pipe?

Check local building codes to find out the “fixture units” (a rating that represents the cubic feet of water used per minute) of an appliance or new fixture. This will tell you what type and size of pipe is recommended at the hookup.

How to do a plumbing estimate step by step?

From the moment we started to construct this site, w wanted to write a piece on how a plumbing estimate is put together. We aimed not at a small residential repair project but a full scale, multi-phased plumbing project.

How are metal and plastic plumbing pipes joined?

Metal or plastic pipes are joined by a variety of fittings designed to couple lengths in a straight line, turn corners, branch in two directions, reduce or enlarge pipe size, or connect to some type of fixture.

Check local building codes to find out the “fixture units” (a rating that represents the cubic feet of water used per minute) of an appliance or new fixture. This will tell you what type and size of pipe is recommended at the hookup.

When adding new plumbing fixtures or appliances to your home, the first thing you’ll need to consider is whether your water pressure is good enough to support your additions. Check local building codes to find out the “fixture units” (a rating that represents the cubic feet of water used per minute) of an appliance or new fixture.

How are vent pipes related to home plumbing?

Vent pipes may connect with the soil stacks or vent directly through the roof. One thing that all plumbing systems have in common is pipes. From water supply to gas piping to drains, pipes are the fundamental material of home plumbing. A pipe’s size and material can serve as a fairly good indicator of its function.

Which is the best way to understand a plumbing system?

One of the best ways to get an understanding of how a plumbing system works is to take a look at plumbing installation. Knowing how all the pieces fit together can help you understand what’s happening when something goes wrong. If you still not able get the actual problem then you can look for the Plumbers in Melbourne.