Insight Horizon
entertainment /

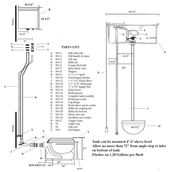
How does a pull chain toilet work?

How does a pull chain toilet work?

Most flush toilets are purely mechanical: pull the chain and the cistern empties through the force of gravity, washing the bowl clean for use again. They are literally mechanical because they flush and refill using levers inside—and levers are examples of what scientists call simple machines.

How does the toilet chain connect?

The chain connects to the flush lever bar with a small metal clip and attaches to the flapper valve with a small metal ring. Slip the chain back onto the clip or ring and use needle-nose pliers to tighten the link or ring.

Why does my toilet chain keep breaking?

Not Enough Slack in the Chain A lift chain that is too tight is also a common cause of a toilet that runs constantly. If the toilet chain is too short, it will also be too tight to comfortably allow the flapper to take its position as the seal in the water tank.

Why do I have to hold handle down to flush toilet?

If you have to hold toilet handle down to flush the toilet completely, that’s usually caused by a flapper that is not totally lifting away from the flush valve. As the water keeps leaking down through the flush valve into the toilet bowl, the water level in the tank never rises high enough to shut off the water flow.

When were pull chain toilets used?

In America, the chain-pull indoor toilet was introduced in the homes of the wealthy and in hotels, soon after its invention in England in the 1880s. Flush toilets were introduced in the 1890s.

Why did toilets have high tanks?

The High-Tank Crapper The Victorians discovered that toilets flushed better when gravity forced the water into the bowl, so they mounted tanks high on the wall above the toilet. Check out these ways to improve flushing power if your toilet just isn’t doing the job.

How do you replace chain in toilet tank?

New chains can be purchased at your local plumbing or hardware store. Use needle-nose pliers to remove the old chain from the tank, including the metal ring on the flapper valve and the small clip on the flush lever bar. Open the small metal ring that came with the new chain. Insert the metal ring into the hole at the top of the flapper valve.

How do you replace a chainsaw fuel tank?

When you make this repair to your chainsaw, you might find that it’s difficult to feed new plastic tubing into the plastic tank. Instead of trying to force the issue, spray a small amount of lubricant onto the tube before insertion to aid in ease of entry. Cut the tip of the fuel line that fits into the tank on a diagonal angle.

Can you replace the back of a toilet tank?

We cut away the fronts and backs of new toilets to show you how to replace these toilet tank parts. Your toilet and toilet tank parts won’t look so pristine inside. You’ll find scummy surfaces, water stains and corrosion. But don’t be squeamish — the water is as clean as the stuff that comes out of your faucets.

Where is the Flapper on a toilet chain?

However, dealing with this problem is quite easy. There is a chain inside the toilet that connects the flushing handle to the flapper. The flapper is a covering that is normally at the top of the tank where water flows out. The chain can be adjusted to control the amount of water flushed in a toilet.

New chains can be purchased at your local plumbing or hardware store. Use needle-nose pliers to remove the old chain from the tank, including the metal ring on the flapper valve and the small clip on the flush lever bar. Open the small metal ring that came with the new chain. Insert the metal ring into the hole at the top of the flapper valve.

How do you replace the Flapper on a no chain toilet?

Hook the end of the lever under the flapper rod and tighten the nut by hand – turning it counterclockwise – to secure the handle arm assembly to the tank. You can use the same replacement procedure when only the toilet flush handle is broken. A Sloane Flushmate is another type of no chain toilet flapper toilet.

When you make this repair to your chainsaw, you might find that it’s difficult to feed new plastic tubing into the plastic tank. Instead of trying to force the issue, spray a small amount of lubricant onto the tube before insertion to aid in ease of entry. Cut the tip of the fuel line that fits into the tank on a diagonal angle.

How does a no chain toilet handle work?

The toilet handle arm on a Mansfield toilet doesn’t actually raise a conventional flapper. Instead, it raises a no chain toilet flapper, which is a small circular disk that seals water out of the flush valve when the tank is full. The seal on the flapper can bind, requiring you to use extra force to push the flush handle.