Insight Horizon
culture /

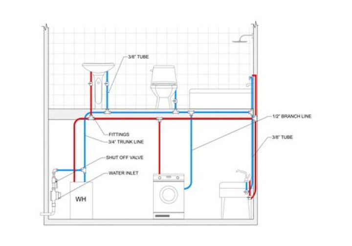
How does a home run PEX water system work?

How does a home run PEX water system work?

From there, you would have a check valve and a pump that moves the hot water from the tank, to that distant fixture, back through the return line that was added, and into the hot water tank via the cold inlet. With a home run PEX system, you don’t have a most distant fixture.

What are the advantages of using PEX plumbing?

Called “homerun” plumbing, by using a single length of PEX for each hot and cold water supply fixture in your home, it eliminates the risk of leaks at multiple connection sites. Beyond flexibility, PEX has other advantages—and two main considerations. Installing PEX does not require soldering as does copper and galvanized steel.

What kind of PEX pipe do you use for hot water?

• Blue PEX pipe carries cold water. • White PEX pipe can be used for either hot or cold water. • Gray PEX pipe, like white, can be used for either hot or cold water (although not all DIY centers carry gray).

What’s the best way to get instant hot water?

The way to get instant hot water would be to install a Hot Tee right at the fixture so that there is very little static water before the faucet. This could be done as a loop, branch or home run system. Ideally a separate return for each run would come back to the second manifold as you suggested.

From there, you would have a check valve and a pump that moves the hot water from the tank, to that distant fixture, back through the return line that was added, and into the hot water tank via the cold inlet. With a home run PEX system, you don’t have a most distant fixture.

Is it safe to use PEX in hot water heater?

This also means you can’t connect PEX directly to a hot water heater, but you can use a connecting material to do this. PEX is semi-permeable, which means liquid can enter the pipe. When it comes to safety, PEX isn’t antibacterial. This is one reason people don’t choose PEX in the PEX vs. copper decision.

Is the instant hot water pump worth it?

Instant hot water to any fixture. Wastes less water since there is no waste. Easy to DIY install and operate. Work with timers to not run when nobody is at home.

Can a plumber install a hot water recirculating pump?

Some homeowners turn their pump off in the summer to solve the problem. You can have a plumber install a recirculating pump. The best hot water recirculating pump is installed on the water heater, returning unused hot water back to the water heater.